PROJEKT

INFORMACJE O PROJEKCIE

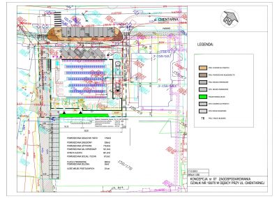
Nazwa projektu: Dyskont Dębica

Projekt: Dyskont Spożywczy w Dębicy
Lokalizacja : woj. podkarpackie , Dębica ul. Cmentarna 52

Planowane otwarcie : 4 kwartał 2014

Powierzchnia GLA: 778,9 m2

Podział lokali: Dyskont spożywczy

Status projektu: Zrealizowany,

Kontakt w sprawie projektu: +48 797 967 670, +48 600 043 911

 

 

Załoga z Redhill to profesjonaliści dla Twojego projektu.