PROJEKT

INFORMACJE O PROJEKCIE

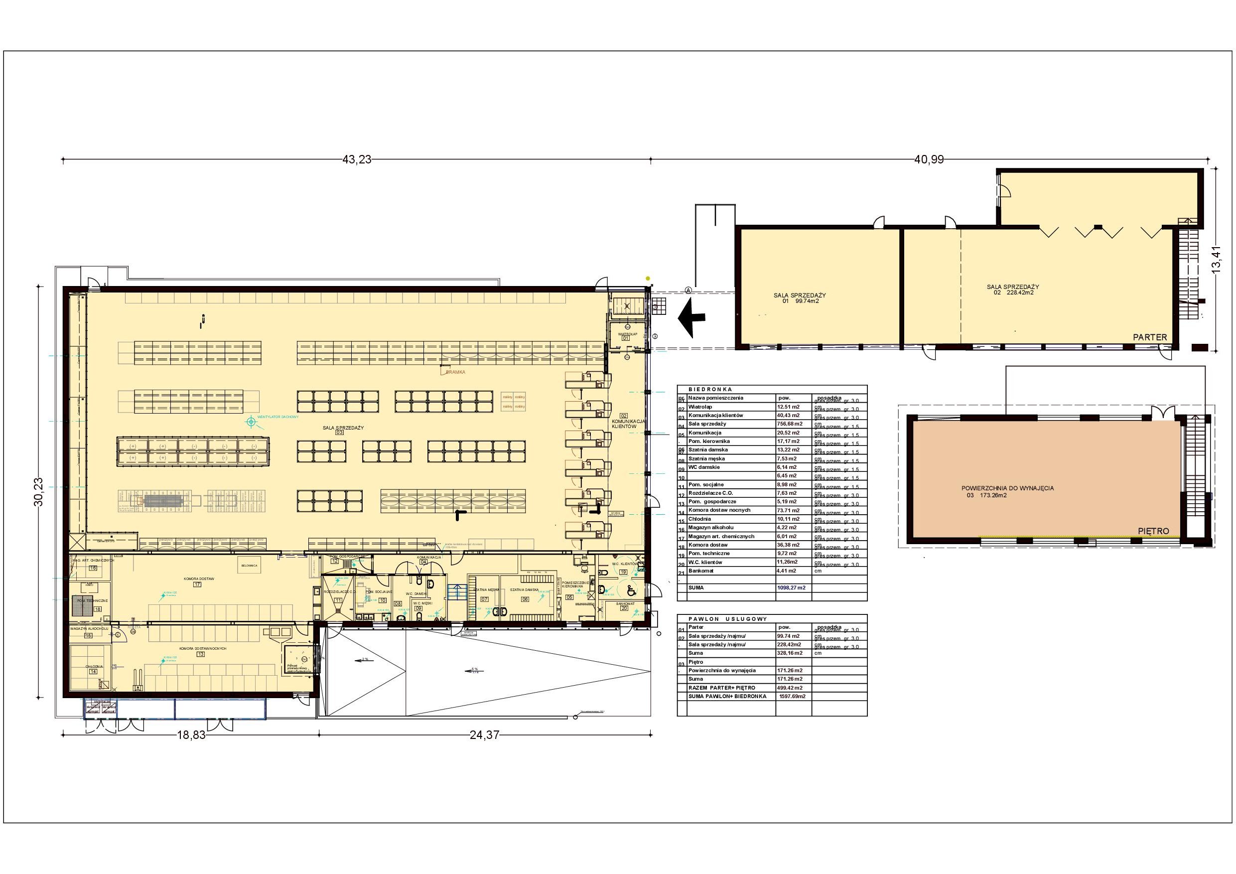
Nazwa projektu: Radom „Biedronka”

Projekt: Dyskont Spożywczy wraz z Pawilonem handlowym w Radomiu
Lokalizacja : woj. Mazowieckie , Radom ul. Gajowa

Planowane otwarcie : 3 kwartał 2011

Powierzchnia GLA: dyskont spożywczy – 1098,27 m2, pawilon handlowy – parter: 328,16 m2, piętro: 171,26 m2

Podział lokali: dyskont spożywczy „Biedronka” oraz pawilon handlowy dwukondygnacyjny,

Projekt Biedronki wraz z pawilonem handlowym, został zrealizowany w 2011, obiekt posiada 1597,69 m2 powierzchni użytkowej pod najem.

Status Projektu: Zrealizowany,

Kontakt w sprawie projektu: +48 797967670, +48 600 043 911

 

 

Załoga z Redhill to profesjonaliści dla Twojego projektu.